- Acacia Park and Resthaven Memorial Gardens, North Tonawanda, NY.
- Buffalo Cemetery*, Cheektowaga, NY.
- Forest Lawn Cemetery, Buffalo, NY. Another version of this map is also available on the Forest Lawn web site.
- Mount Calvary Cemetery*, Cheektowaga, NY.
- Mount Calvary Cemetery*, Cheektowaga, NY. (Apparently older version of map).
- Mount Olivet Cemetery, Kenmore, NY. Map is courtesy of Catholic Cemeteries of Buffalo.
- Pine Lawn Cemetery*, Cheektowaga, NY.
- Ridge Lawn Cemetery*, Cheektowaga, NY.
- Saint Matthews Cemetery, West Seneca, NY. Another version of this map is available here.
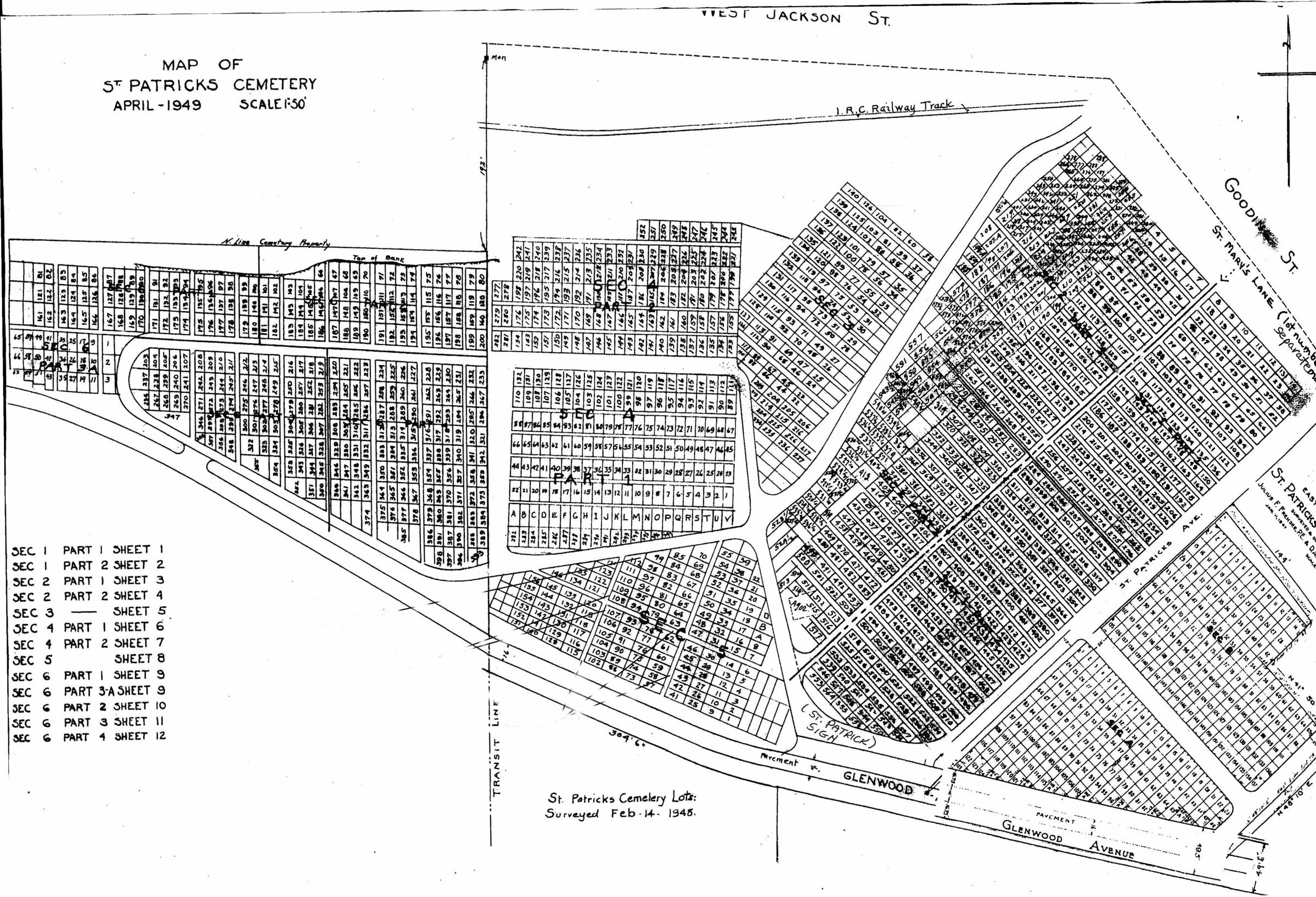
- Saint Patrick's Cemetery, Lockport, NY.
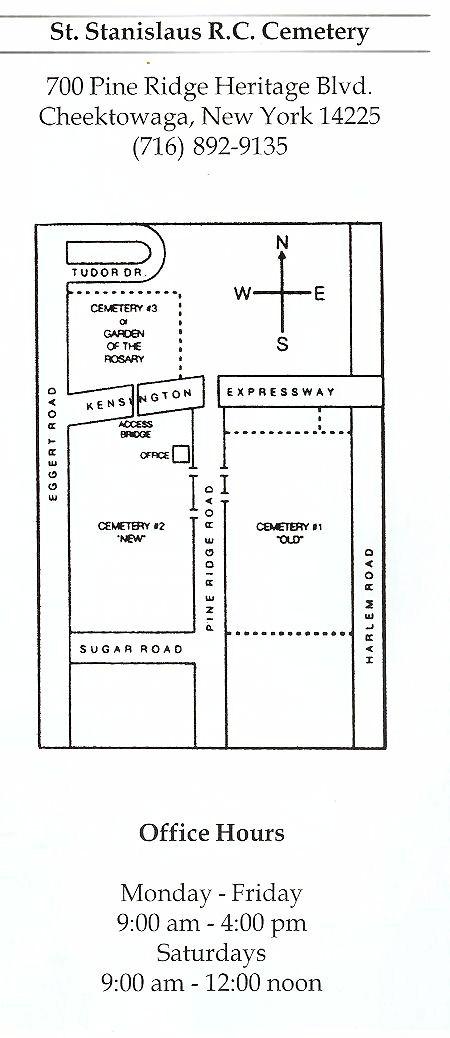
- Saint Stanislaus Cemetery, Cheektowaga, NY. General map, showing the location of the three cemeteries.
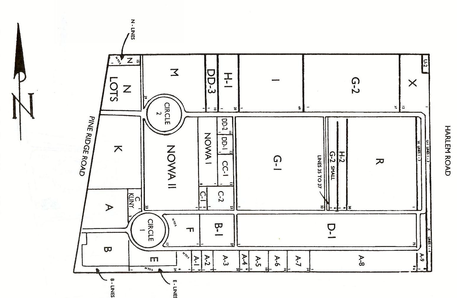
- Saint Stanislaus Cemetery, Cheektowaga, NY. Map of Cemeteries #1 and #2.
- Saint Stanislaus Cemetery, Cheektowaga, NY. Map of Cemeterys #3.
- United German & French Cemetery*, Cheektowaga, NY.
- United German & French Cemetery*, Cheektowaga, NY. (Older, more detailed version of map).
*These five cemeteries are together referred to as the "Pine Hill Group of Cemeteries." They are all administered by the Mount Calvary Cemetery, Inc. Altogether, about 250,000 people are interred in these five cemeteries.
|